Park Facilities

The Village of Davis's park facilities are available to groups and citizens to reserve for family gatherings, group parties, picnics, meetings, or other events.

Park reservations are on a first-come, first-serve basis and a fee is required. For additional information or to see if a specific date is available, contact the Village of Davis Parks and Recreation Department.

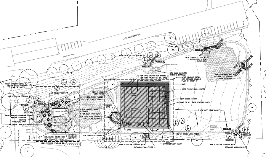
**Memory Park will be under construction for upgrades and improvements set to open June 2026**  During construction some areas may be closed off and off limits.

Park renovation plans